
WILHELMINAHOF I
De locatie is nog in volle ontwikkeling, waardoor de onderstaande beelden slechts impressies zijn. We zijn hard aan het werk om het ontwerp verder te optimaliseren en verfijnen, maar de getoonde beelden weerspiegelen onze huidige visie. Aan deze beelden kunnen geen rechten worden ontleend.
Bekijk hieronder de plattegrond en gevel weergaven van Wilhelminahof I. Beweeg over de rode button in het midden van een appartement of algemeen deel van het gebouw en ontdek meteen meer over deze plek.
DE ONTMOETINGSKERK – WILHELMINAHOF I



BEGANE GROND-SOUTERRAIN

APPARTEMENT 01
Ruim appartement op de begane grond etage van het gebouw.
Dit appartementen heeft een oppervlak van ca.71m2
Het appartement is met de buitengevel zuid-oost georiënteerd waardoor de tuin aan de woonkamer de gehele ochtend tot in de vroege middag zon ontvangt.
Het appartement heeft een ruime gecombineerde woonkamer/ eetkamer/ keuken (ca. 28m2), 2 slaapkamers (ca. 6 en 13m2), een ruime badkamer (ca. 5m2), separaat toilet en een ruime voorraad/ technische ruimte (ca. 5m2). Aanvullend nog een tuin (ca. 76m2).
APPARTEMENT 02
Ruim appartement op de begane grond etage van het gebouw.
Dit appartementen heeft een oppervlak van ca.82m2
Het appartement is met de buitengevel zuid-oost georiënteerd waardoor de tuin aan de woonkamer de gehele ochtend tot in de vroege middag zon ontvangt.
Het appartement heeft een ruime gecombineerde woonkamer/ eetkamer/ keuken (ca. 32m2), 2 slaapkamers (ca. 8 en 19m2), een ruime badkamer (ca. 6m2), separaat toilet en een ruime voorraad/ technische ruimte (ca. 5m2). Aanvullend nog een tuin (ca. 77m2).
APPARTEMENT 03
Ruim appartement op de begane grond etage van het gebouw.
Dit appartementen heeft een oppervlak van ca.65m2
Het appartement is met de buitengevel noord-west georiënteerd waardoor de tuin aan de woonkamer de gehele middag tot in de vroege avond uren zon ontvangt.
Het appartement heeft een gecombineerde woonkamer/ eetkamer/ keuken (ca. 26m2), 2 slaapkamers (ca. 8 en 10m2), een ruime badkamer (ca. 4m2), separaat toilet en een ruime voorraad/ technische ruimte (ca. 5m2). Aanvullend nog een tuin (ca. 104m2).
FIETSENSTALLING
Een ruim opgezette fietsenstalling voor alle appartementen van Wilhelminahof I.
In totaal vinden ca. 44 fietsen hier onderdak.
ENTREE
Een ruime entree met lift en trap om de appartementen op de hoger gelegen verdiepingen te bereiken.
1E VERDIEPING

APPARTEMENT 04
Zeer ruim appartement op de 1ste etage van het gebouw.
Dit appartementen heeft een oppervlak van ca.165m2
Het appartement is met de buitengevel zuid-oost georiënteerd waardoor het inpandige 'balkon' bij de woonkamer alsook het balkon bij de slaapkamer de gehele ochtend tot in de vroege middag zon ontvangt.
Het appartement heeft een ruime woonkamer (ca. 57m2), 3 slaapkamers (ca. 13, 18 en 27m2), een ruime badkamer (ca. 7m2), separaat toilet en een ruime voorraad/ technische ruimte (ca. 5m2).
APPARTEMENT 05
Ruim appartement op de 1ste etage van het gebouw.
Dit appartementen heeft een oppervlak van ca.83m2
Het appartement is met de buitengevel noord-west georiënteerd waardoor het balkon aan de woonkamer de gehele middag tot in de vroege avond uren zon ontvangt.
Het appartement heeft een ruime woonkamer (ca. 42m2), 2 slaapkamers (ca. 9 en 11m2), een ruime badkamer (ca. 5m2), separaat toilet en een ruime voorraad/ technische ruimte (ca. 5m2).
APPARTEMENT 06
Ruim appartement op de 1ste etage van het gebouw.
Dit appartementen heeft een oppervlak van ca.88m2
Het appartement is met de buitengevel noord-west georiënteerd waardoor het balkon aan de woonkamer de gehele middag tot in de vroege avond uren zon ontvangt.
Het appartement heeft een ruime woonkamer (ca. 35m2), 2 slaapkamers (ca. 11 en 22m2), een ruime badkamer (ca. 5m2), separaat toilet en een ruime voorraad/ technische ruimte (ca. 5m2).
ENTREE
Een ruime entree met lift en trap om de appartementen op de lager en hoger gelegen verdiepingen te bereiken.
NOODTRAPPENHUIS
Dit trappenhuis is bedoeld voor calamiteiten.
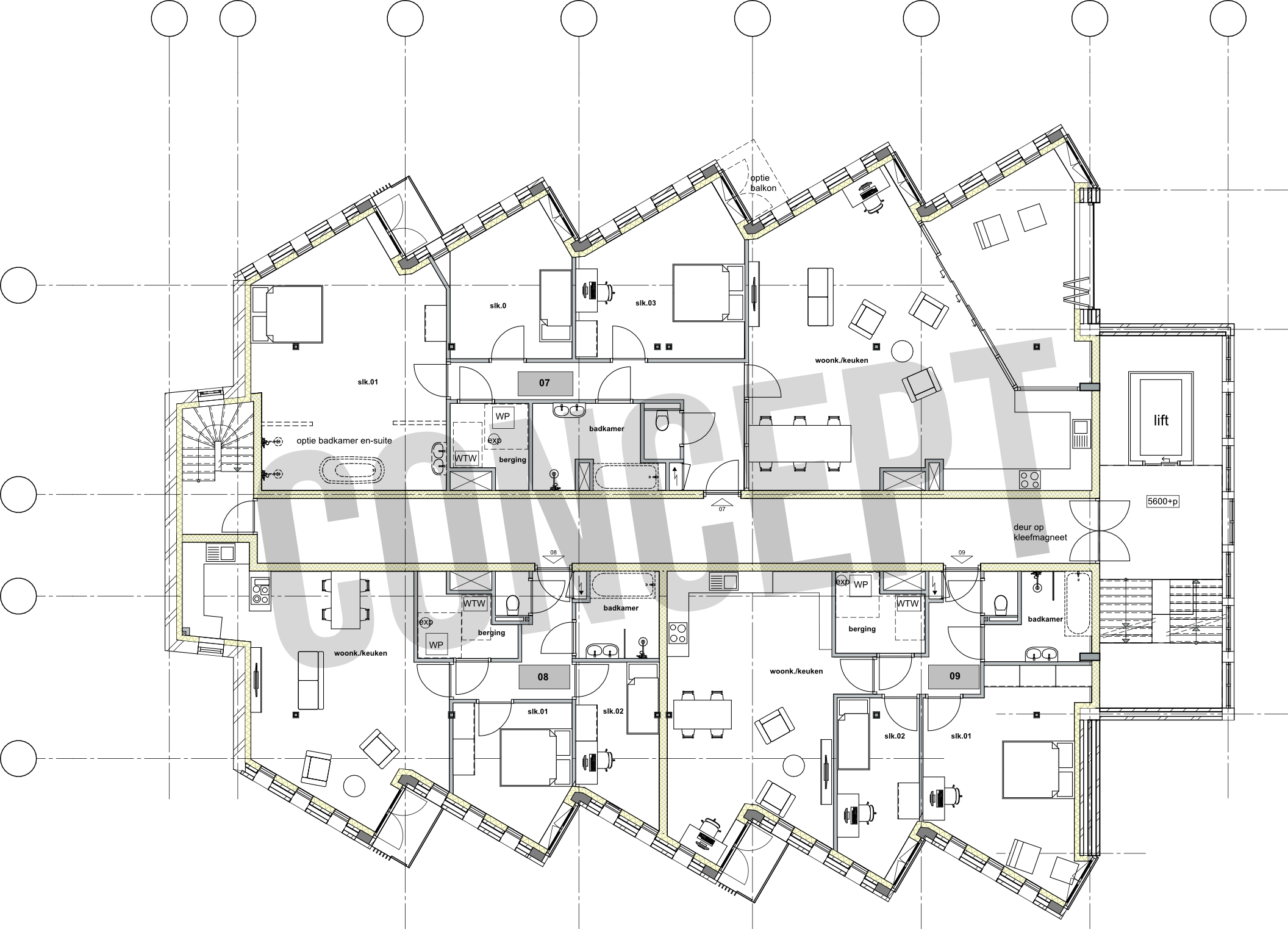
2E VERDIEPING

APPARTEMENT 07
Zeer ruim appartement op de 2de etage van het gebouw.
Dit appartementen heeft een oppervlak van ca.174m2
Het appartement is met de buitengevel zuid-oost georiënteerd waardoor het inpandige 'balkon' bij de wwonkamer alsook het balkon bij de slaapkamer de gehele ochtend tot in de vroege middag zon ontvangt.
Het appartement heeft een ruime gecombineerde woonkamer/eetkamer/keuken (ca. 57m2), 3 slaapkamers (ca. 13, 18 en 35m2), een ruime badkamer (ca. 7m2), separaat toilet en een ruime voorraad/ technische ruimte (ca. 5m2).
APPARTEMENT 08
Ruim appartement op de 2de etage van het gebouw.
Dit appartementen heeft een oppervlak van ca.78m2
Het appartement is met de buitengevel noord-west georiënteerd waardoor het balkon aan de woonkamer de gehele middag tot in de vroege avond uren zon ontvangt.
Het appartement heeft een ruime gecombineerde woonkamer/eetkamer/keuken (ca. 42m2), 2 slaapkamers (ca. 9 en 11m2), een ruime badkamer (ca. 5m2), separaat toilet en een ruime voorraad/ technische ruimte (ca. 5m2).
APPARTEMENT 09
Ruim appartement op de 2de etage van het gebouw.
Dit appartementen heeft een oppervlak van ca.89m2
Het appartement is met de buitengevel noord-west georiënteerd waardoor het balkon aan de woonkamer de gehele middag tot in de vroege avond uren zon ontvangt.
Het appartement heeft een ruime gecombineerde woonkamer/eetkamer/keuken (ca. 35m2), 2 slaapkamers (ca. 11 en 22m2), een ruime badkamer (ca. 5m2), separaat toilet en een ruime voorraad/ technische ruimte (ca. 5m2).
ENTREE
Een ruime entree met lift en trap om de appartementen op de lager en hoger gelegen verdiepingen te bereiken.
NOODTRAPPENHUIS
Dit trappenhuis is bedoeld voor calamiteiten.
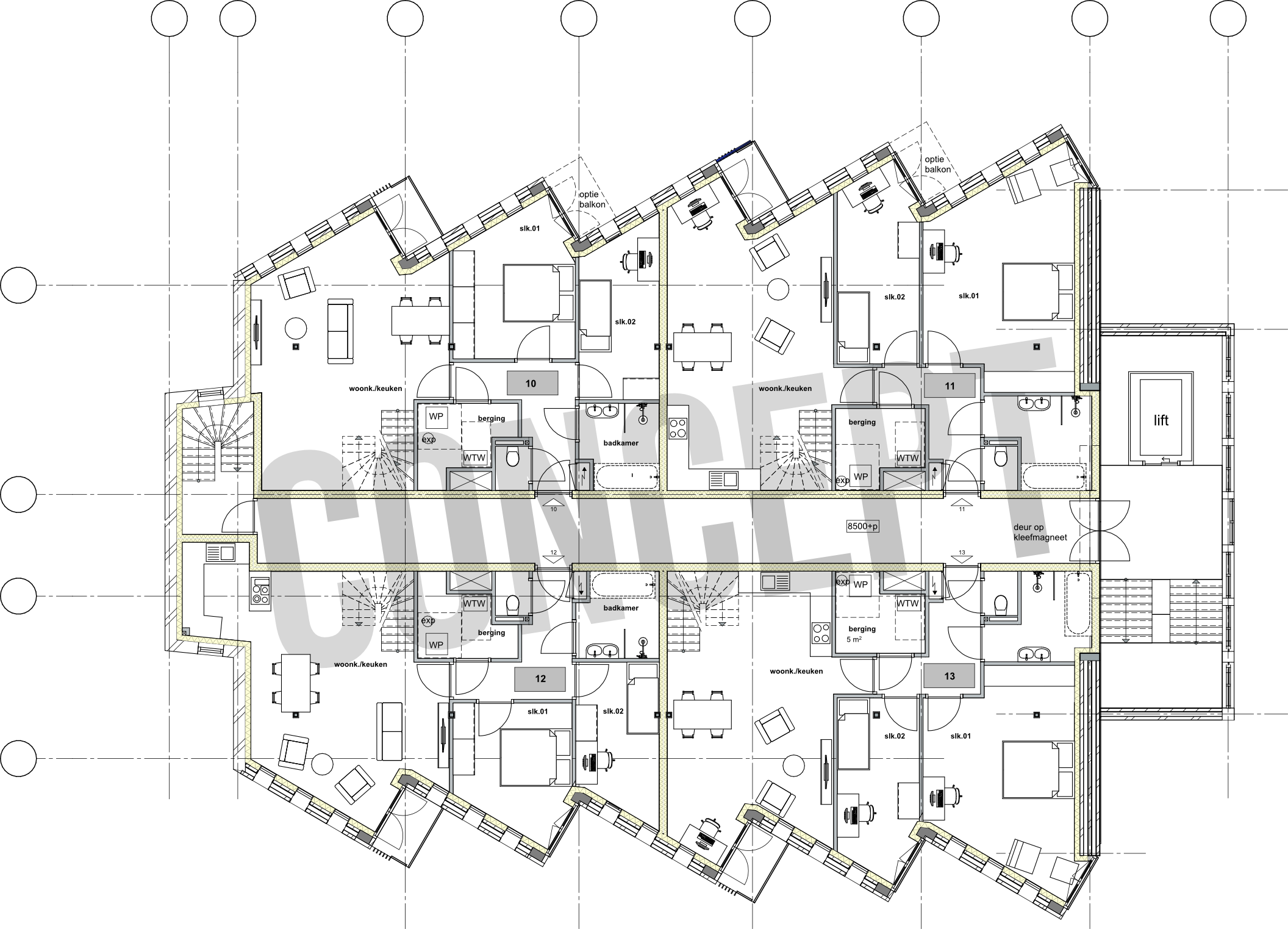
3E VERDIEPING

APPARTEMENT 10
Ruim appartement op de 3de en 4de etage van het gebouw.
Dit appartementen heeft een oppervlak van ca.78m2
Het appartement is met de buitengevel zuid-oost georiënteerd waardoor het balkon aan de woonkamer de gehele ochtend tot in de vroege middag zon ontvangt.
Het appartement heeft een ruime gecombineerde woonkamer/eetkamer/keuken (ca. 33m2), 2 slaapkamers (ca. 11 en 13m2), een ruime badkamer (ca. 5m2), separaat toilet en een ruime voorraad/ technische ruimte (ca. 5m2).
Een vaste trap in de woonkamer ontsluit de bovenliggende verdieping van ca. 40m2. Naast ruimte voor bijvoorbeeld een werkkamer of extra slaapkamer is er vanuit de basis een zogenaamde logia aangebracht door een dakdoorbreking op te nemen. Hierdoor ontsaat een extra buitenruimte die net als het balkon zuid-west georienteerd ligt.
APPARTEMENT 11
Ruim appartement op de 3de en 4de etage van het gebouw.
Dit appartementen heeft een oppervlak van ca.96m2
Het appartement is met de buitengevel zuid-oost georiënteerd waardoor het balkon aan de woonkamer de gehele ochtend tot in de vroege middag zon ontvangt.
Het appartement heeft een ruime gecombineerde woonkamer/eetkamer/keuken (ca. 37m2), 2 slaapkamers (ca. 12 en 23m2), een ruime badkamer (ca. 5m2), separaat toilet en een ruime voorraad/ technische ruimte (ca. 5m2).
Een vaste trap in de woonkamer ontsluit de bovenliggende verdieping van ca. 50m2. Naast ruimte voor bijvoorbeeld een werkkamer of extra slaapkamer is er vanuit de basis een zogenaamde logia aangebracht door een dakdoorbreking op te nemen. Hierdoor ontsaat een extra buitenruimte die net als het balkon zuid-west georienteerd ligt.
APPARTEMENT 12
Ruim appartement op de 3de en 4de etage van het gebouw.
Dit appartementen heeft een oppervlak van ca.78m2
Het appartement is met de buitengevel noord-west georiënteerd waardoor het balkon aan de woonkamer de gehele middag tot in de vroege avond uren zon ontvangt.
Het appartement heeft een ruime gecombineerde woonkamer/eetkamer/keuken (ca. 36m2), 2 slaapkamers (ca. 9 en 11m2), een ruime badkamer (ca. 5m2), separaat toilet en een ruime voorraad/ technische ruimte (ca. 5m2).
Een vaste trap in de woonkamer ontsluit de bovenliggende verdieping van ca. 40m2. Naast ruimte voor bijvoorbeeld een werkkamer of extra slaapkamer is er vanuit de basis een zogenaamde logia aangebracht door een dakdoorbreking op te nemen. Hierdoor ontsaat een extra buitenruimte die net als het balkon noord-oost georienteerd ligt.
APPARTEMENT 13
Ruim appartement op de 3de en 4de etage van het gebouw.
Dit appartementen heeft een oppervlak van ca.92m2
Het appartement is met de buitengevel noord-west georiënteerd waardoor het balkon aan de woonkamer de gehele middag tot in de vroege avond uren zon ontvangt.
Het appartement heeft een ruime gecombineerde woonkamer/eetkamer/keuken (ca. 35m2), 2 slaapkamers (ca. 11 en 22m2), een ruime badkamer (ca. 5m2), separaat toilet en een ruime voorraad/ technische ruimte (ca. 5m2).
Een vaste trap in de woonkamer ontsluit de bovenliggende verdieping van ca. 50m2. Naast ruimte voor bijvoorbeeld een werkkamer of extra slaapkamer is er vanuit de basis een zogenaamde logia aangebracht door een dakdoorbreking op te nemen. Hierdoor ontsaat een extra buitenruimte die net als het balkon noord-oost georienteerd ligt.
ENTREE
Een ruime entree met lift en trap om de appartementen op de lager en hoger gelegen verdiepingen te bereiken.
NOODTRAPPENHUIS
Dit trappenhuis is bedoeld voor calamiteiten.
4E VERDIEPING

APPARTEMENT 10
Ruim appartement op de 3de en 4de etage van het gebouw.
Dit appartementen heeft een oppervlak van ca.78m2
Het appartement is met de buitengevel zuid-oost georiënteerd waardoor het balkon aan de woonkamer de gehele ochtend tot in de vroege middag zon ontvangt.
Het appartement heeft een ruime gecombineerde woonkamer/eetkamer/keuken (ca. 33m2), 2 slaapkamers (ca. 11 en 13m2), een ruime badkamer (ca. 5m2), separaat toilet en een ruime voorraad/ technische ruimte (ca. 5m2).
Een vaste trap in de woonkamer ontsluit de bovenliggende verdieping van ca. 40m2. Naast ruimte voor bijvoorbeeld een werkkamer of extra slaapkamer is er vanuit de basis een zogenaamde logia aangebracht door een dakdoorbreking op te nemen. Hierdoor ontsaat een extra buitenruimte die net als het balkon zuid-west georienteerd ligt.
APPARTEMENT 11
Ruim appartement op de 3de en 4de etage van het gebouw.
Dit appartementen heeft een oppervlak van ca.96m2
Het appartement is met de buitengevel zuid-00st georiënteerd waardoor het balkon aan de woonkamer de gehele ochtend tot in de vroege middag zon ontvangt.
Het appartement heeft een ruime gecombineerde woonkamer/eetkamer/keuken (ca. 37m2), 2 slaapkamers (ca. 12 en 23m2), een ruime badkamer (ca. 5m2), separaat toilet en een ruime voorraad/ technische ruimte (ca. 5m2).
Een vaste trap in de woonkamer ontsluit de bovenliggende verdieping van ca. 50m2. Naast ruimte voor bijvoorbeeld een werkkamer of extra slaapkamer is er vanuit de basis een zogenaamde logia aangebracht door een dakdoorbreking op te nemen. Hierdoor ontsaat een extra buitenruimte die net als het balkon zuid-west georienteerd ligt.
APPARTEMENT 12
Ruim appartement op de 3de en 4de etage van het gebouw.
Dit appartementen heeft een oppervlak van ca.78m2
Het appartement is met de buitengevel noord-west georiënteerd waardoor het balkon aan de woonkamer de gehele middag tot in de vroege avond uren zon ontvangt.
Het appartement heeft een ruime gecombineerde woonkamer/eetkamer/keuken (ca. 36m2), 2 slaapkamers (ca. 9 en 11m2), een ruime badkamer (ca. 5m2), separaat toilet en een ruime voorraad/ technische ruimte (ca. 5m2).
Een vaste trap in de woonkamer ontsluit de bovenliggende verdieping van ca. 40m2. Naast ruimte voor bijvoorbeeld een werkkamer of extra slaapkamer is er vanuit de basis een zogenaamde logia aangebracht door een dakdoorbreking op te nemen. Hierdoor ontsaat een extra buitenruimte die net als het balkon noord-oost georienteerd ligt.
APPARTEMENT 13
Ruim appartement op de 3de en 4de etage van het gebouw.
Dit appartementen heeft een oppervlak van ca.92m2
Het appartement is met de buitengevel noord-west georiënteerd waardoor het balkon aan de woonkamer de gehele middag tot in de vroege avond uren zon ontvangt.
Het appartement heeft een ruime gecombineerde woonkamer/eetkamer/keuken (ca. 35m2), 2 slaapkamers (ca. 11 en 22m2), een ruime badkamer (ca. 5m2), separaat toilet en een ruime voorraad/ technische ruimte (ca. 5m2).
Een vaste trap in de woonkamer ontsluit de bovenliggende verdieping van ca. 50m2. Naast ruimte voor bijvoorbeeld een werkkamer of extra slaapkamer is er vanuit de basis een zogenaamde logia aangebracht door een dakdoorbreking op te nemen. Hierdoor ontsaat een extra buitenruimte die net als het balkon noord-oost georienteerd ligt.